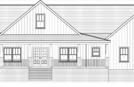
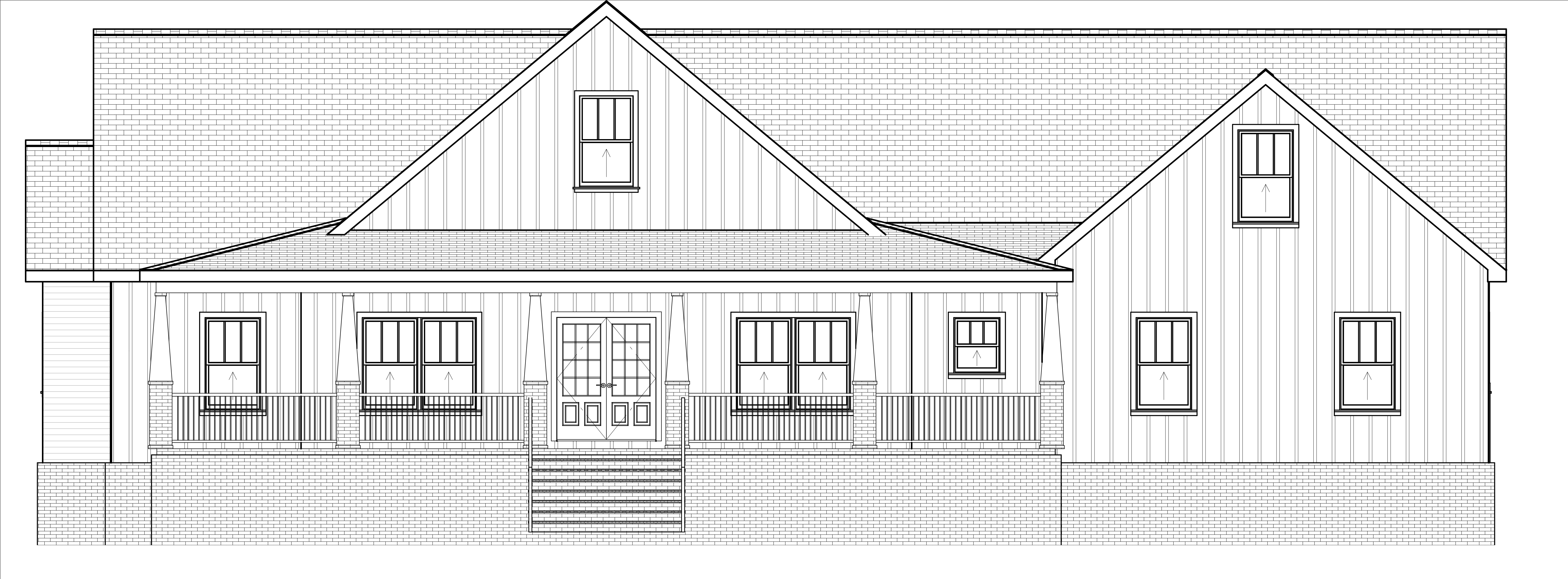
Bedrooms 4 Bathrooms 3.5 Square Ft. 2736 Lot 4 Property Overview About this property Click Here to See Plan Promote Your Listing Open House Lead Page Create An Open House Lead Page Social Site Lock Registration Page Headerless Landing Page Enable Social Site Lock